Back to top

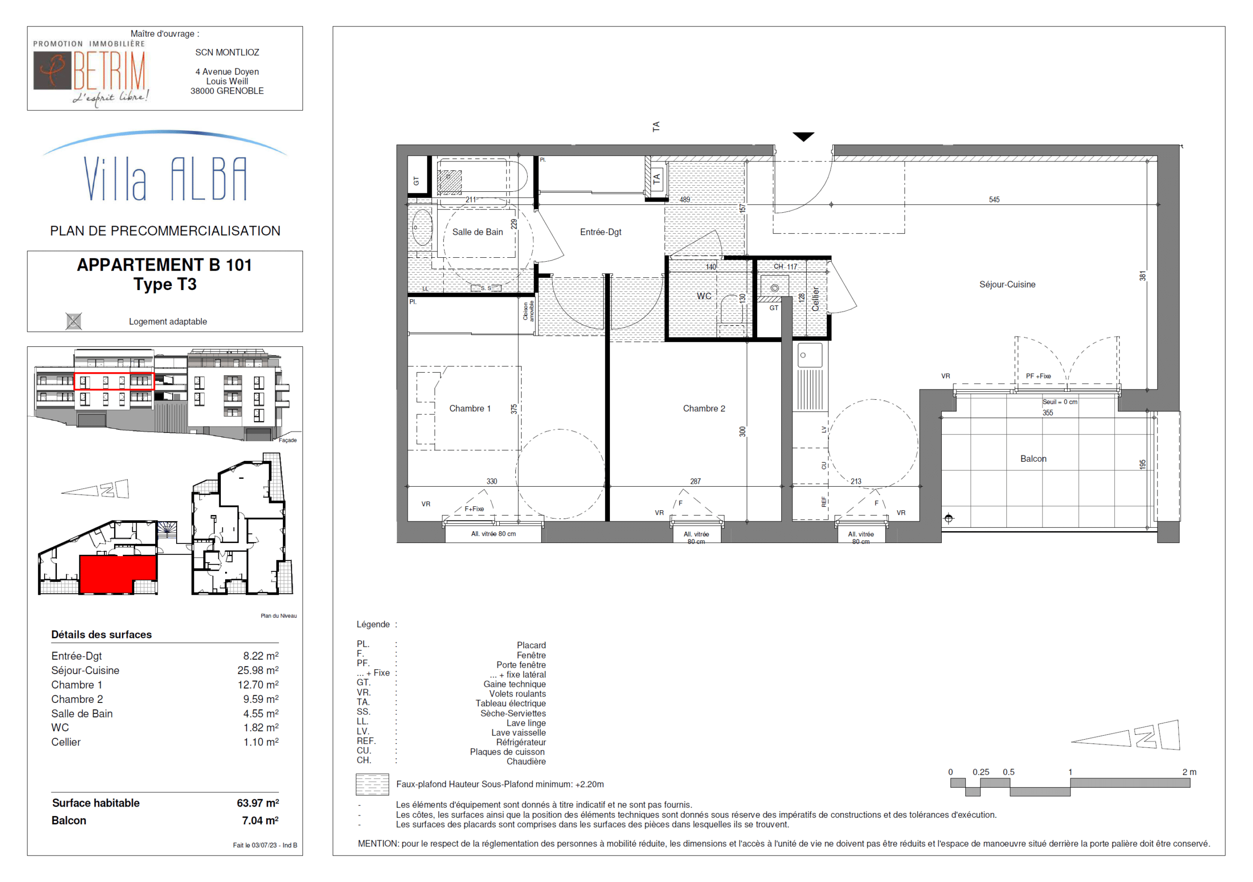
Appartement T2 – 1er étage – 63,97 m² – 350.000 € – Villa Alba (Aix-les-Bains)

Belles Surfaces Agence Immobilière Aix-les-Bains Pugny-Chatenod Vente Immo Maison Appartement Betrim
aix-les-bains belles surfaces appartement a vendre beltrim marlioz promotion
belles surfaces programme neuf immobilier aix-les-bains beltrim promoteur appartement a vendre